â¤ī¸ Selected works
⨠Other works
đą Major project part 1
đˇ Major project part 2
đˇ Photography
đĨ Videography - YouTube Channel
đ Print - Portfolio
đ Print - Research Book
âšī¸ Info
Tiger Yuanlong veto_zealots_0g@icloud.com
â¤ī¸ Selected works
⨠Other works
đą Major project part 1
đˇ Major project part 2
đˇ Photography
đĨ Videography - YouTube Channel
đ Print - Portfolio
đ Print - Research Book
âšī¸ Info
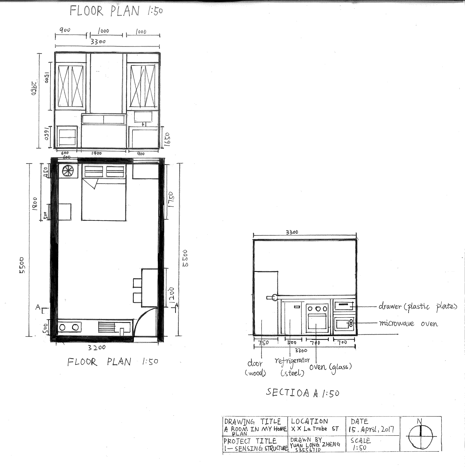
SLICE & SENSING STRUCTURE
SLICE
Room drawing
FURNITURE DRAWING
This is my home chair, coposed of two parts, wood and steel.
↑
Back to Top